Screenshot 2025-07-26 at 5.47.45 pm.png

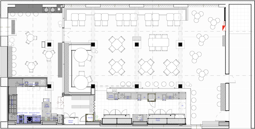
The space

The venue is made up of two spaces, out the back is Button Bar and it is small cocktail bar.

The front which would be your space has small kitchen, street access for serving and small dining area.

It is three month pop up, we feel this will give you enough time to test your product but also not too long in case it don’t go as plan.


from us

  • We provide you with a space of approximately 40 sqm.

  • The D.A. approved hours are 7:00 AM to 2:00 AM (the following day), Monday to Sunday inclusive.

  • The liquor license is a Small Bar License, with Minor Authorisation approved hours from 10:00 AM to 2:00 AM, seven days a week.

  • Kitchen equipment is detailed in the draft agreement.

  • Full-time staff are included—more details are listed in the draft agreement.

  • A small cocktail menu can be provided to complement the food, if desired.

  • All the other essentials you need to run a hospo business are included: Point of Sale, merchant facility, third-party platforms (Uber Eats, etc.), booking system, and compliance systems.

  • General maintenance of equipment is covered.

  • You'll also have access to our marketing channels.

  • And you'll be part of the YCK Laneways community.


from you

  • Police check – we need to know who we are working with.

  • $20 million Public Liability Insurance.

  • Contributions – these will be worked out on a pro rata basis according to overall floor space.

  • An executed agreement.

  • Own accounts set up with wholesalers.

  • Strict adherence to our Plan of Management and compliance systems.

  • RSA, Food Handler, and other relevant certifications.

  • Compliance with food safety, OH&S, liquor regulations, and other regulatory requirements.